

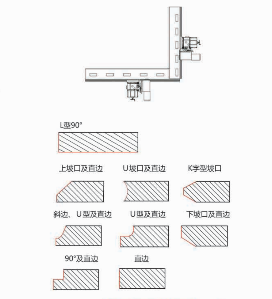
功能與特點:
>> 鋼板的直邊和端面同時一次銑削成型,保證鋼板的直邊和端面呈平面90度,精度提高效率快;
>> 解決較長鋼板端面銑削不便癥結;
>> 無壓梁設計鋼板裝卸安全、方便、提高工作效率;
>> 銑削使用范圍擴大;
>> 采用無壓梁設計,工件裝卸安全方便,生產效率顯著提高;
>> 超強磁力吸盤分布合理,單盤吸力高達3.5噸[專利產品];
>> 與液壓銑邊機相比,因不受壓梁限制,上下料方便,更合適加工多規格,多尺寸的工作,廠房利用率提高。
>> 導軌整體設計一次加工成型,表面處理強度大,磨損變形量小,行走平穩。主要磨損面鑲鋼導軌保護,便于磨損后快速更換不傷及基準導軌,可根據客戶要求、可以制作可拆卸式高強度HRC50淬火導軌,在非人為損傷的情況下,可視為不磨損,大大提高設備的精度及設備使用年限。
可根據客戶要求、制作可拆卸式導軌






